Bar 151
Location
New York, NY
Type
Lounge
Square Footage
1,500 sq. ft
Completion Year
2018
Bar 151, a cozy lounge spread across 1,500 square feet, presented a unique canvas for Tirso Lighting’s expertise. Tasked with the challenge in 2018, our goal was to create a lighting ambiance that served dual purposes—cultivating a relaxed vibe at the front of the space while energizing the back area for a lively party atmosphere.
Navigating through Bar 151’s narrow space required a thoughtful approach to ensure the lighting design harmonized with its architectural constraints. The key was to differentiate the venue’s two main areas without disrupting the overall flow, adhering to the client’s vision of a multi-experiential space.
Stage Design Implementation
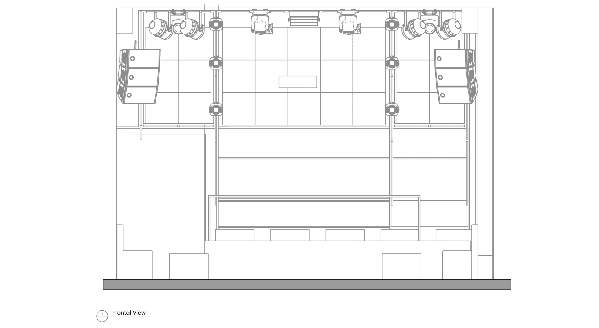
The stage design at Bar 151 was meticulously crafted to serve as both a dynamic performance area and an exclusive VIP area. To enhance its dual functionality, the design incorporated custom LED screens that were outdoor-rated to withstand the inevitable spills from the lively nightlife environment. This choice ensured that vibrant visuals could be maintained without interruption.
For lighting, the stage utilized a sophisticated array of fixtures, including Elation Dart 360 and E Spot III, supplemented by SixPar 200 LEDs and Protron 3K strobes. This diverse lighting setup was controlled by GrandMA2 and Resolume Arena systems, enabling precise manipulation of lighting scenes to suit different events. Whether spotlighting a live performance or enhancing the VIP atmosphere, the lighting was integral to transforming the stage into the focal point of Bar 151, contributing significantly to the overall ambiance and functionality of the venue.
Solutions
Front Lounge Area
For the front lounge, our approach was to invoke warmth and relaxation. We achieved this through:
Warm White Lighting: We selected non-color-changing fixtures emitting a warm white glow at 2700 K, enveloping the area in a comforting ambiance conducive to unwinding and socializing.
Cove and Bar Lighting: The bar and cove areas were accentuated with warm white lighting, meticulously designed to complement the bar’s aesthetics and functionality, enhancing the visibility and presentation of the bar’s offerings.
Recessed Color Changing Fixtures: Strategically placed to subtly elevate the mood, these fixtures added depth to the relaxed ambiance, demonstrating our commitment to detail and ambiance.
Elation Lighting System: Utilizing Elation Dart 360 and E Spot fixtures, we curated a vibrant energy synonymous with celebration. The selection of these fixtures was driven by their versatility in creating a dynamic, immersive experience.
LED Bars and Screen: Central to the party area was our implementation of LED pixel bars and a P4 outdoor-rated LED screen. This choice was informed by both aesthetic and practical considerations, ensuring durability against inadvertent champagne splashes while captivating guests with vivid displays.
Control and Operation
Control was paramount in realizing the vision for Bar 151. Our use of GrandMA2 and Resolume Arena, complemented by MIDI controllers and touchscreens, allowed for seamless transitions and adaptable atmospheres, highlighting our forefront position in lighting control innovation.
The Outcome
The completion of Bar 151 marked a significant milestone in lighting design, transforming a compact New York space into a beacon of ambience versatility. Through our lighting solutions, each area within Bar 151 now narrates a different story, seamlessly transitioning from a serene lounge to a pulsating party space, in line with the client’s aspirations.
Tirso Lighting’s project at Bar 151 exemplifies our ethos of pushing the boundaries of lighting design. Through innovative solutions and meticulous execution, we transcended the ordinary, crafting an experience that captivates and delights. This project stands as a testament to our unwavering commitment to excellence and innovation in lighting design.
Inspired by our transformation of Bar 151?
Let’s create something extraordinary together.